Plateformes Logistiques
Réf. 88227DISTRIPORT - B3
5 AVENUE DE SHANGAI
PORT ST LOUIS DU RHONE, 13230
54 € / m²
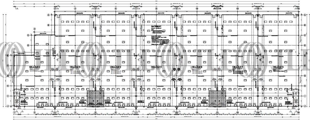
- Surface25 198 m² divisibles dès 10 177 m²
- DisponibilitéImmédiate
- Description
- Prestations & Services
- DPE
- Localisation et Transports
- Plans
- Brochure
- Consultant
- Nous contacter
Description
Zone Distriport - Bouches du Rhône (13) - Port Saint Louis du Rhône (13230)
JLL vous propose à la location plusieurs cellules dans un entrepôt logistique disposant des principales rubriques ICPE.
Nombreux accès à quais.
Le bâtiment est situé à proximité du terminal container du grand port maritime Marseille-Fos 1er port de France, au croisement des routes maritimes mondiales.
Les informations sur les risques auxquels ce bien est exposé sont disponibles sur le site Géorisques : www.georisques.gouv.fr
- Zone AFR
Surface disponible
DPE
Diagnostic en cours de réalisation
Localisation et Transports
. SNCF : gare de Marseille Saint Charles à 1h
. Aéroport de Marseille Provence à 50min
. Accès routiers : D268, N568, N569
. Aéroport de Marseille Provence à 50min
. Accès routiers : D268, N568, N569
Consultant

Mathieu Terzian
Détails de l'agent







