Plateformes Logistiques
Réf. 95121Mise à jour
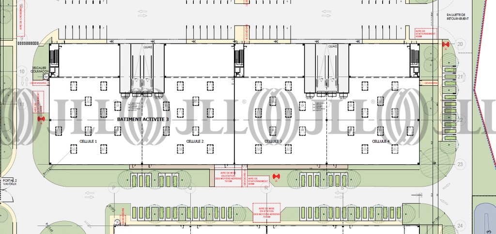
BATIMENT 3
RUE DE L INDUSTRIE
HUNINGUE, 68330
Nous consulter
- Surface6 472 m²
- Disponibilité4e trim. 2026
- Description
- Prestations & Services
- DPE
- Localisation et Transports
- Plans
- Brochure
- Consultant
- Nous contacter
Description
A LOUER - HUNINGUE (68330)
JLL vous propose, à la location, des locaux à usage de stockage avec bureaux d’accompagnement.
Entrepôts fonctionnels bénéficiant d’une belle hauteur, de portes à quai / plain-pied et emplacements de parking.
Très belle opportunité JLL.
Les informations sur les risques auxquels ce bien est exposé sont disponibles sur le site Géorisques : www.georisques.gouv.fr
Surface disponible
DPE
Diagnostic en cours de réalisation
Localisation et Transports
. Accès routier : A35
. SNCF : gare de Bâle à 5 km
. Aéroport de Bâle à 5 km
. SNCF : gare de Bâle à 5 km
. Aéroport de Bâle à 5 km
Consultant

Olivier Durif
Détails de l'agent



