Plateformes Logistiques
Réf. 97970HOUPLINES I - ZAC DU MOULIN DE LA LYS
9 RUE DES MAITRES FOULONS
HOUPLINES, 59116
52 € / m²
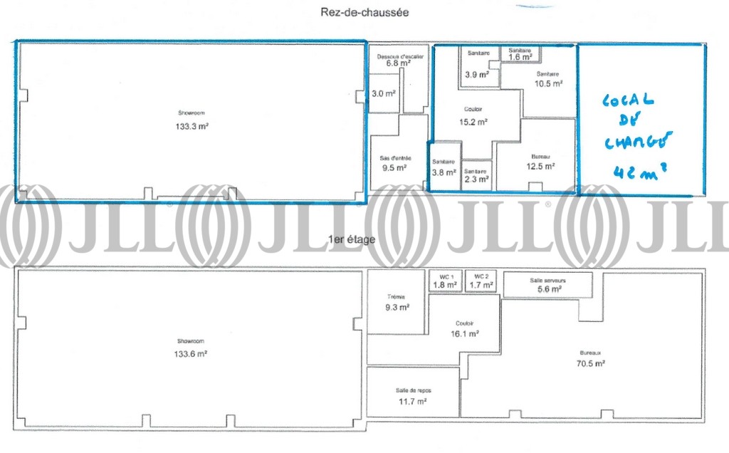
- Surface4 767 m²
- DisponibilitéImmédiate
- Description
- Prestations & Services
- DPE
- Localisation et Transports
- Plans
- Brochure
- Consultant
- Nous contacter
Description
A LOUER - HOUPLINES (59116)
JLL vous propose à la location une cellule logistique à louer sur la commune de Houplines.
Proximité autoroute A25.
Les informations sur les risques auxquels ce bien est exposé sont disponibles sur le site Géorisques : www.georisques.gouv.fr
Surface disponible
DPE
Diagnostic en cours de réalisation
Localisation et Transports
. Accès routier : A25
. TER : gare d'Armentières
. TER : gare d'Armentières
Consultant

Aurélien Desprets
Détails de l'agent





