Plateformes Logistiques
Réf. 87736RUE MAURICE RAVEL
ARGENTAN, 61200
279,45 € / m²
- Surface8 946 m²
- DisponibilitéImmédiate
- Description
- Prestations & Services
- DPE
- Localisation et Transports
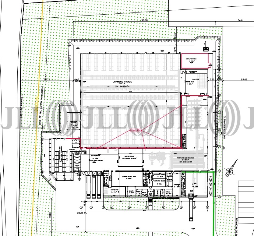
- Plans
- Brochure
- Consultant
- Nous contacter
Description
JLL vous propose un entrepôt à l'acquisition à l'Argentan (61200).
Cette surface frigorifique est située à proximité de l'A88 et accessible par gros porteurs.
Les informations sur les risques auxquels ce bien est exposé sont disponibles sur le site Géorisques : www.georisques.gouv.fr
- Zone AFR
Surface disponible
DPE
Diagnostic en cours de réalisation
Localisation et Transports
. Accès routier : A88
Consultant

Alexandre Du passage
Détails de l'agent







