Plateformes Logistiques
Réf. 90408Mise à jour
ZA LES CHASSES - PROJET
RUE NICOLAS APPERT
ROMANS SUR ISERE, 26100
Nous consulter
- Surface13 600 m²
- DisponibilitéNous consulter
- Description
- Prestations & Services
- DPE
- Localisation et Transports
- Plans
- Brochure
- Consultant
- Nous contacter
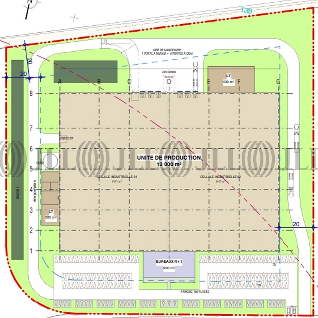
Description
JLL vous propose la location ou l’acquisition d’un site industriel et logistique à Romans-sur-Isère (26100).
Cette surface productive sera idéalement située à proximité d’axes routiers, bassins d’emplois et de consommation et accessible par gros porteurs depuis l’A7 et l’A49. Ce site bénéficiera de prestations qualitatives : accès à quais, accès de plain-pied, aire de manoeuvre, places de parking (VL/PL), certification HQE, label Biodivercity...
Les informations sur les risques auxquels ce bien est exposé sont disponibles sur le site Géorisques : www.georisques.gouv.fr
- Zone AFR
Surface disponible
DPE
Diagnostic en cours de réalisation
Localisation et Transports
. TER : Gare de Romans Bourg de Péage . Accès routiers : A49, N 352, A7, N7
Consultant

Olivier Durif
Détails de l'agent



