Bureaux
Réf. 962672 RUE DE LA CHAUSSEE DE PARIS
VILLENOY, 77124
180 € / m²
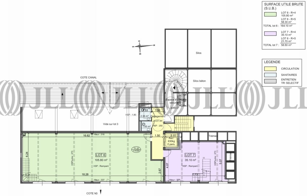
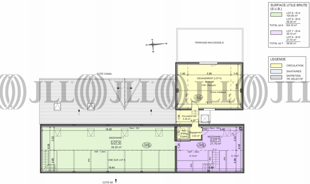
- Surface164 m² (env. 16 postes)
- DisponibilitéImmédiate
- Description
- Prestations & Services
- DPE
- Localisation et Transports
- Plans
- Brochure
- Consultant
- Nous contacter
Description
Bureaux à louer à Villenoy (77), JLL vous propose des surfaces de bureaux en étage/accès PMR à la location, à partir de 164m². L'immeuble est sécurisé et comprend une entrée privative et se situe à proximité immédiate de la gare de Meaux - Ligne P à 4 min à pied et des axes N330 / D603 / D360 et A140. Le plateaux de bureau est livré en open-space, avec une grande mezzanine. Possibilité de 6 places de parkings extérieurs.
Les informations sur les risques auxquels ce bien est exposé sont disponibles sur le site Géorisques : www.georisques.gouv.fr
- Taxes foncière et de bureaux : 5 000€ HT/an
Surface disponible
DPE
Diagnostic en cours de réalisation
Localisation et Transports
. SNCF : Gare de Meaux
Consultant

Frank Chavinier
Détails de l'agent


