Bureaux
Réf. 81224Mise à jour
LES PRES BUSINESSPOLE A - BATIMENT B
33 RUE DENIS PAPIN
VILLENEUVE D ASCQ, 59650
195 € / m²
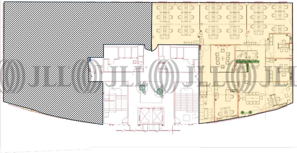
- Surface458 m² (env. 45 postes)
- DisponibilitéImmédiate
- Description
- Prestations & Services
- DPE
- Localisation et Transports
- Plan
- Brochure
- Consultant
- Nous contacter
Description
BUREAUX RENOVES - A LOUER - VILLENEUVE D'ASCQ LES PRES
Au cœur du Businesspôle Les Près, dans un environnement tertiaire et verdoyant, nous vous proposons un lot de 458m² de bureaux avec ameublement de standing, bureaux prêts à l’emploi.
Au pied du métro les Près, à moins de 15 minutes des gares.
Nombreux services et restaurants aux alentours.
Les informations sur les risques auxquels ce bien est exposé sont disponibles sur le site Géorisques : www.georisques.gouv.fr
- Zone AFR
Surface disponible
DPE
Diagnostic en cours de réalisation
Localisation et Transports
Métro ligne 2 à 170 m - Station "Les Près - Edgard Pisani"
=> Gares TGV Lille Europe et Lille Flandres en moins de 10 min
Accès rapide autoroute A22
Aéroport Lille Lesquin à 15 min en voiture
=> Gares TGV Lille Europe et Lille Flandres en moins de 10 min
Accès rapide autoroute A22
Aéroport Lille Lesquin à 15 min en voiture
Consultant

Charlotte Ghesquiere
Détails de l'agent







