ECOTONE - BAT B
BOULEVARD MARCEL SEMBAT
VENISSIEUX, 69200
Loyer annuel: 180,84 € / m²
Prix à la vente: 2 589,81 € / m²
- Surface4 693 m² (env. 469 postes)
- Disponibilité2e trim. 2028
- Description
- Prestations & Services
- DPE
- Localisation et Transports
- Plans
- Brochure
- Consultant
- Nous contacter
Description
Bureaux à louer ou à vendre - GRAND PARILLY - Vénissieux (69200)
Le projet ECOTONE est un programme mixte regroupant logements, commerces, bureaux et locaux d'activités. Il bénéficie d'une accessibilité exceptionnelle grâce à la proximité immédiate du tramway T4, du métro ligne B, des stations Vélo'v et du boulevard périphérique Laurent Bonnevay.
L'environnement offre une gamme complète de services avec des restaurants comme Ninkasi, Les 3 Brasseurs et plusieurs enseignes de restauration rapide, des grandes surfaces telles qu'IKEA, Leroy Merlin et Carrefour, ainsi que des services de proximité incluant maison de santé, crèche et CPAM.
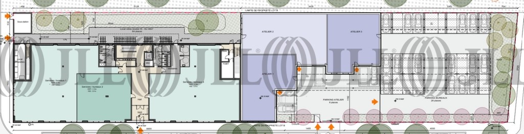
Les espaces tertiaires développent 4 120 m² sur 5 niveaux avec une capacité d'accueil de 400 collaborateurs. Les plateaux lumineux et modulables s'accompagnent de terrasses multi-orientées favorisant le bien-être des équipes. Le rez-de-chaussée et le premier étage sont classés ERP 5ème catégorie pouvant accueillir jusqu'à 200 personnes.
Le projet s'inscrit dans une démarche environnementale ambitieuse avec la conformité RE 2020, la certification BREEAM Very Good et le référentiel Bureaux Durables. MEDIECO accompagne spécifiquement le projet sur la qualité de l'air et le bien-être des usagers.
Le site dispose de 26 places de stationnement extérieur avec la possibilité de créer un sous-sol pour 50 à 60 places supplémentaires. L'ensemble intègre également des socles commerciaux animés, un restaurant indépendant et un espace flexible dédié à l'artisanat et l'activité.
Les informations sur les risques auxquels ce bien est exposé sont disponibles sur le site Géorisques : www.georisques.gouv.fr
Loyer Terrasses : 50% du loyer € HT HC / m² SUBL / an du lot attenant
Option parkings en sous-sol : 29 000 € HT/Unité/an
Zone AFR
Surface disponible
DPE
Diagnostic en cours de réalisation
Localisation et Transports
. Tramway T4 : Joliot-Curie - M. Sembat
. Accès routiers : Boulevard périphérique
Consultant

Soham Allard
Détails de l'agent

