77 RUE JEAN BLEUZEN
VANVES, 92170
300 € / m²
- Surface931 m² divisibles dès 110 m² (env. 93 postes)
- DisponibilitéImmédiate
- Description
- Prestations & Services
- DPE
- Localisation et Transports
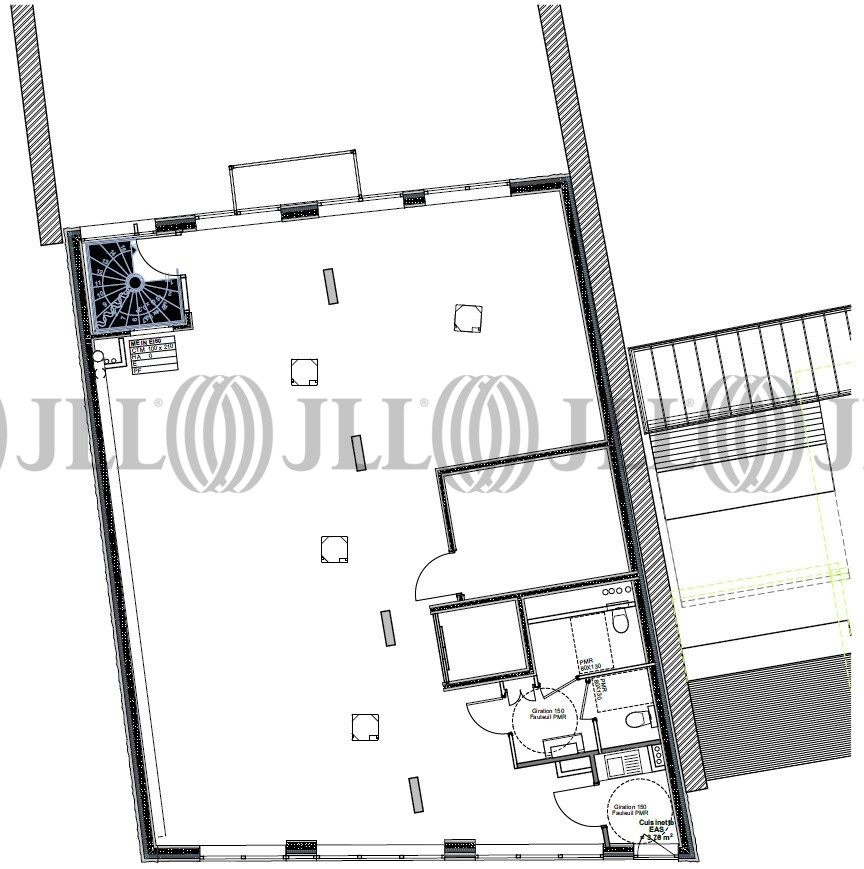
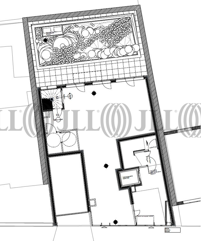
- Plans
- Brochure
- Consultant
- Nous contacter
Description
JLL vous propose un immeuble indépendant d'environ 930 m² divisible à partir de 110 m²qui se situe au pied du métro ligne 13 à Vanves. Les espaces de travail sont baignés de lumière et entièrement climatisés. Chaque étage dispose d'une terrasse privative, tandis que le rez-de-chaussée s'ouvre sur un jardin de 100 m². Deux niveaux de parkings en sous-sol de 200 m² peuvent être convertis en espaces de stockage selon vos besoins. Un bien d'exception dans un secteur recherché, disponible à la location. Contactez-nous pour plus d'informations.
Les informations sur les risques auxquels ce bien est exposé sont disponibles sur le site Géorisques : www.georisques.gouv.fr
Bail dérogatoire de 24 ou 36 mois possible
Surface disponible
DPE
Localisation et Transports
. Bus : liges 58,59, N63 à 2 min à pied
. Accès routiers : Boulevard périphérique "Porte de Vanves", A6a
Consultant

Gauthier Daccord
Détails de l'agent







