LES PROCEDES
70 RUE JEAN BLEUZEN
VANVES, 92170
250 € / m²
- Surface2 234 m² divisibles dès 262 m² (env. 223 postes)
- DisponibilitéImmédiate
- Description
- Prestations & Services
- DPE
- Localisation et Transports
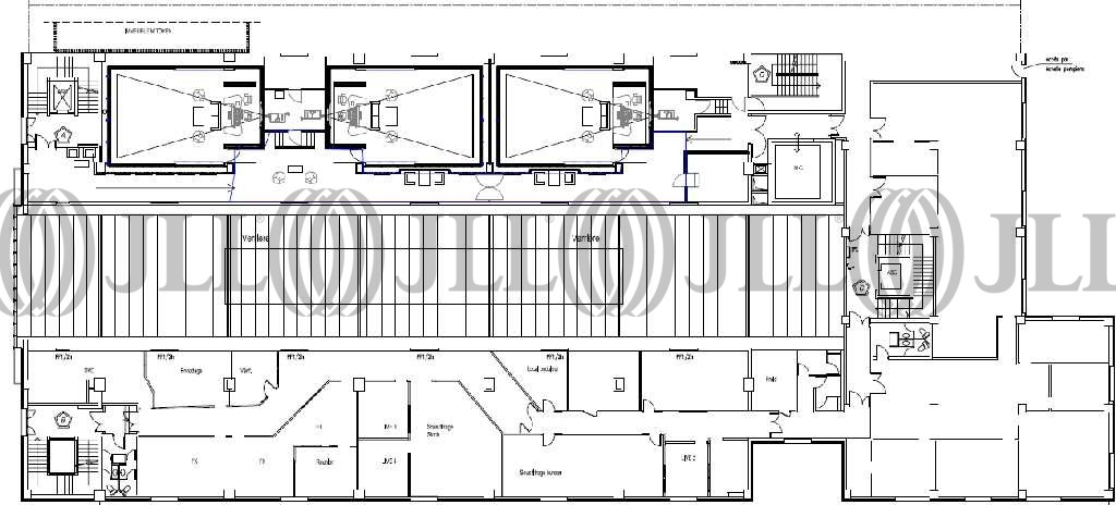
- Plans
- Brochure
- Consultant
- Nous contacter
Description
Local de bureaux et/ou activité à louer à Vanves, dans le département des Hauts-de-Seine. La ville qui fait partie, avec Boulogne-Billancourt, Chaville, Issy-les-Moulineaux, Meudon, Sèvres, et Ville-d'Avray, de la communauté d’agglomération « Grand Paris Seine Ouest » qui a pour but d'élaborer et de conduire un ensemble un projet commun de développement urbain et d'aménagement du territoire.
Les surfaces de bureaux et/ou activité à louer sont des surface d’activité aménagées ou aménageables en bureaux, les prix y sont donc très attractif pour le secteur. L’immeuble possède un monte-charge, ainsi qu’un ascenseur, et un accès sécurisé. Plusieurs places de parking sont disponibles.
L’immeuble est accessible via la ligne 13 du métro à la station « Malakoff-Plateau de Vanves » située à seulement 2 minutes à pieds du local. Plusieurs lignes de bus sont également à proximité : 58 89 126. Et le boulevard périphérique à la Porte Brancion est à quelques mètres de l’immeuble.
Les informations sur les risques auxquels ce bien est exposé sont disponibles sur le site Géorisques : www.georisques.gouv.fr
Surface disponible
DPE
Diagnostic en cours de réalisation
Localisation et Transports
. Bus : lignes 58, 89, 126
. Tramway T3 : station "Brancion" à 600 m
. Accès routier : Porte de Brancion à 250 m
. Station vélib' : en face
Consultant

Paul Bonneau
Détails de l'agent







