LE SEBASTOPOL
4 RUE ALFRED LEFRANCOIS
TOURCOING, 59200
Nous consulter
- Surface1 419 m² divisibles dès 344 m² (env. 141 postes)
- DisponibilitéImmédiate
- Description
- Prestations & Services
- DPE
- Localisation et Transports
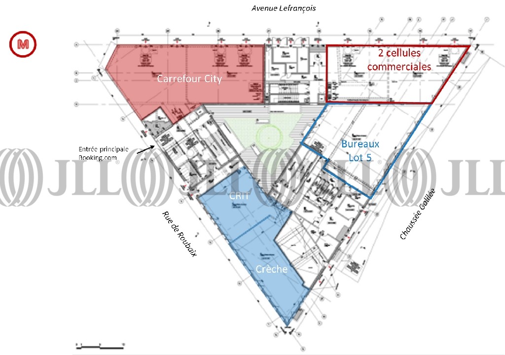
- Plan
- Brochure
- Consultant
- Nous contacter
Description
BUREAUX - A LOUER - TOURCOING CENTRE
Bureaux à louer de 1 419 m² à Tourcoing centre. Espaces de travail divisibles à partir de 344 m², répartis sur plusieurs niveaux avec climatisation réversible, éclairage LED et possibilité d'aménagement cuisine dans chaque lot.
L'immeuble dispose d'un ascenseur, patio commun, sanitaires collectifs, douches en rez-de-chaussée et 17 places de parking en sous-sol.
Situation centrale exceptionnelle face à la station de métro M2 Gare de Tourcoing, à proximité immédiate de la gare TGV/TER et du tramway.
Les informations sur les risques auxquels ce bien est exposé sont disponibles sur le site Géorisques : www.georisques.gouv.fr
. Charges bureaux : 29€ HT/m²/an
. Charges locaux commerciaux : 10,50€ HT/m²/an
- Zone AFR
Surface disponible
DPE
Diagnostic en cours de réalisation
Localisation et Transports
• Gare de Tourcoing (TGV / TER / Bus) à 350 m
• Tramway station "Victoire" à 550m
Consultant

Quentin Masse
Détails de l'agent







