VEELLAGE DE ST PRIEST - BATIMENT A1
50 RUE JEAN ZAY
ST PRIEST, 69800
94,63 € / m²
- Surface317 m² (env. 31 postes)
- DisponibilitéImmédiate
- Description
- Prestations & Services
- DPE
- Localisation et Transports
- Plans
- Brochure
- Consultant
- Nous contacter
Description
Bureaux à louer au VEELLAGE DE ST PRIEST - BATIMENT A1. Situés au 50 RUE JEAN ZAY à ST PRIEST (69800),
Ces espaces exceptionnels de 317m² sont disponibles immédiatement pour répondre à vos besoins de développement. Le site offre une multitude de prestations appréciables avec un accueil dédié et une aire de manoeuvre variant entre 27 et 34 m.
Vous apprécierez un sol en dalle béton, une hauteur sous plafond de 7m et une charge relative au sol de 2 T/m². Les bureaux entièrement non cloisonnés se trouvent sous un faux plafond, avec une charge relative au sol de 500 kg/m². Pour votre confort, une climatisation double flux est installée.
Le VEELLAGE DE ST PRIEST est parfaitement connecté. Les bus TCL 53,62 et 81 sont à portée de main. Le Boulevard Périphérique et A43 sont à 2 km, la Gare TGV de Lyon Part-Dieu à 8 km et celle de Vénissieux à 2 km. Pour vos déplacements internationaux, l’Aéroport International de Lyon Saint-Exupéry est à 20 km
Les informations sur les risques auxquels ce bien est exposé sont disponibles sur le site Géorisques : www.georisques.gouv.fr
Eau comprise dans les charges.
Drone enregistré le 22/06/2021
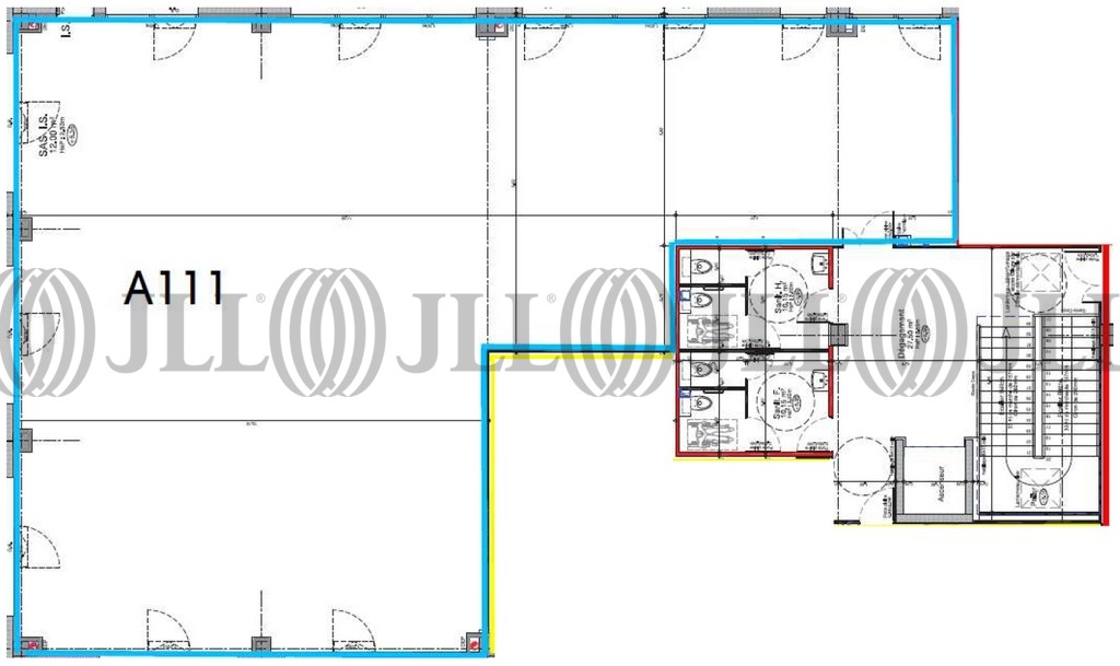
Surface disponible
DPE
Diagnostic en cours de réalisation
Localisation et Transports
• Boulevard Périphérique et A43 à 2 km (4 min)
• Gare TGV de Lyon Part-Dieu à 8 km (15 min)
• Gare TGV de Vénissieux à 2 km (4 min)
• Tramway T2 à 1 km (2 min)
• Aéroport International de Lyon Saint-Exupéry à 20 km (18 min)
Consultant
Caroline Martin
Détails de l'agent

