Bureaux
Réf. 88266Mise à jour
HERITAGE
2-6 PLACE SUZANNE LENGLEN
ST OUEN SUR SEINE, 93400
Nous consulter
- Surface14 835 m² divisibles dès 4 000 m² (env. 1 483 postes)
- DisponibilitéImmédiate
- Description
- Prestations & Services
- DPE
- Localisation et Transports
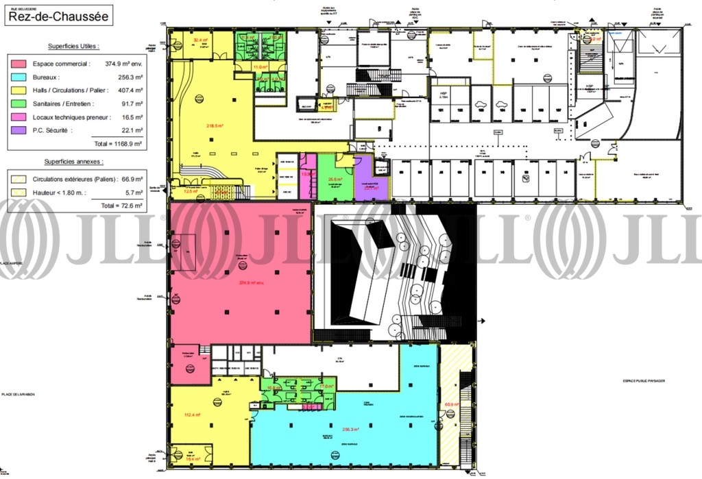
- Plans
- Brochure
- Consultant
- Nous contacter
Description
Venez découvrir cet immeuble de bureaux neuf situé dans un environnement dynamique et mixte de Saint-Ouen. Profitez de grands espaces de travail baignés de lumière avec des loggias verdoyantes dans les étages, et un impressionnant espace sportif au sommet, sous une charpente en bois offrant 10 m de hauteur libre environ. Une écriture architecturale qui confère à ce lieu une signature unique pour votre entreprise.
Les informations sur les risques auxquels ce bien est exposé sont disponibles sur le site Géorisques : www.georisques.gouv.fr
Seuil de division à l'étude
Surface disponible
DPE
Diagnostic en cours de réalisation
Localisation et Transports
. Métro : Carrefour Pleyel (ligne 13)
. Métro : Pleyel (ligne 14, futures lignes 15, 16, 17)
. Accès routiers : A86, A1 et A15 à proximité
. Métro : Pleyel (ligne 14, futures lignes 15, 16, 17)
. Accès routiers : A86, A1 et A15 à proximité
Consultant

Erol Erdem
Détails de l'agent







