Bureaux
Réf. 88582PARC DU CANON D'OR - BATIMENT B
3 RUE PHILIPPE NOIRET
ST ANDRE LEZ LILLE, 59350
160 € / m²
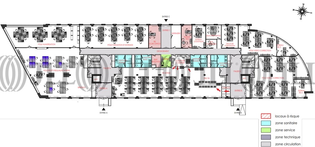
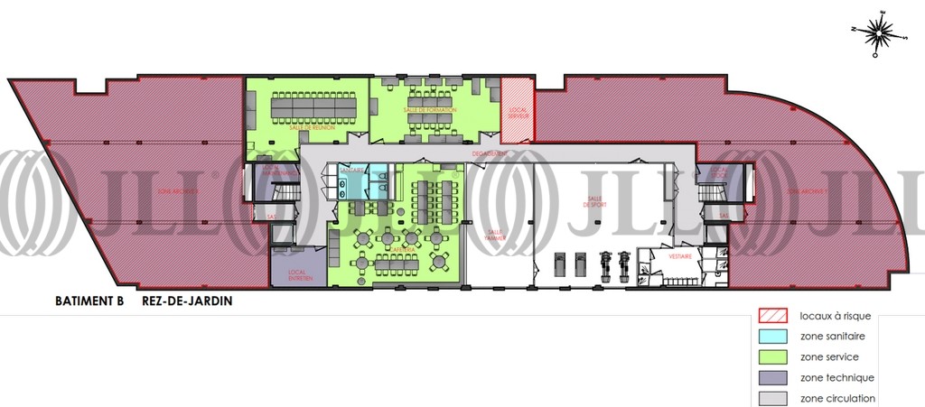
- Surface4 434 m² (env. 443 postes)
- Disponibilité4e trim. 2025
- Description
- Prestations & Services
- DPE
- Localisation et Transports
- Plans
- Brochure
- Consultant
- Nous contacter
Description
A LOUER / A VENDRE - IMMEUBLE EN L'ETAT - ST ANDRE / LAMBERSART
Nous vous proposons à la location ou à la vente, cet immeuble de 4900 m² à St André Lez Lille / Lambersart. Dans un parc tertiaire verdoyant, Le Canon d'Or, vous êtes à 5 mn en voiture de la Citadelle de Lille et du Vieux Lille.
Les informations sur les risques auxquels ce bien est exposé sont disponibles sur le site Géorisques : www.georisques.gouv.fr
Surface disponible
DPE
Diagnostic en cours de réalisation
Localisation et Transports
Gare TER Saint-André à 600 m
Gares TGV Lille Europe et Lille Flandres à 10 min en voiture ou 20 min en bus (Liane 90 directe)
Bus lignes L1 et L90 arrêt "Faidherbe" à 300 m
Aéroport Lille Lesquin à 14 min en voiture
Accès rapide aux grands axes routiers et autoroutiers
Gares TGV Lille Europe et Lille Flandres à 10 min en voiture ou 20 min en bus (Liane 90 directe)
Bus lignes L1 et L90 arrêt "Faidherbe" à 300 m
Aéroport Lille Lesquin à 14 min en voiture
Accès rapide aux grands axes routiers et autoroutiers
Consultant

Charlotte Ghesquiere
Détails de l'agent







