Bureaux
Réf. 77770MILEWAY PARKS MARSEILLE
1 IMPASSE DU PARADOU
MARSEILLE, 13009
110 € / m²
- Surface2 165 m² divisibles dès 67 m² (env. 216 postes)
- DisponibilitéImmédiate
- Description
- Prestations & Services
- DPE
- Localisation et Transports
- Plans
- Brochure
- Consultant
- Nous contacter
Description
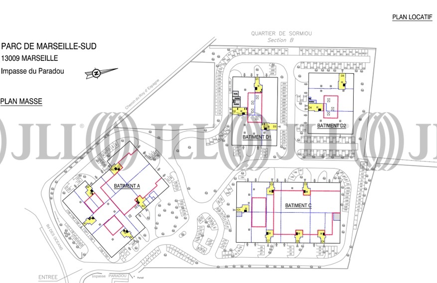
JLL vous propose des bureaux à louer au sein du MILEWAY PARK de Marseille-Sud situé dans le 9ème arrondissement de Marseille, entre les quartiers de Bonneveine et du Roy d’Espagne.
Ce parc d’activités de près de 18 000 m² entièrement sécurisé et clôturé est composé de 4 bâtiments indépendants en R+1 à usage de bureaux et d’activités. Nombreux emplacements de stationnements.
Les informations sur les risques auxquels ce bien est exposé sont disponibles sur le site Géorisques : www.georisques.gouv.fr
Surface disponible
DPE
Diagnostic en cours de réalisation
Localisation et Transports
Accès routier :
• Tunnel du Prado/Carénage qui facilité la circulation vers le Centre-ville et les axes autoroutiers du Nord de Marseille
• A50 en direction d’Aubagne, Toulon et Nice
• A55 vers Vitrolles, Aix-en-Provence et Lyon
Transports en commun : Nombreuses navettes et bus depuis la gare Saint Charles de Marseille
Aéroport : A 20 minutes par le tunnel du Prado-Carénage
• Tunnel du Prado/Carénage qui facilité la circulation vers le Centre-ville et les axes autoroutiers du Nord de Marseille
• A50 en direction d’Aubagne, Toulon et Nice
• A55 vers Vitrolles, Aix-en-Provence et Lyon
Transports en commun : Nombreuses navettes et bus depuis la gare Saint Charles de Marseille
Aéroport : A 20 minutes par le tunnel du Prado-Carénage
Consultant

Yoann Pohu
Détails de l'agent






