
21 RUE DE LA REPUBLIQUE
MARSEILLE, 13001
210 € / m²
- Surface363 m² divisibles dès 123 m² (env. 36 postes)
- Disponibilité3e trim. 2026
- Description
- Prestations & Services
- DPE
- Localisation et Transports
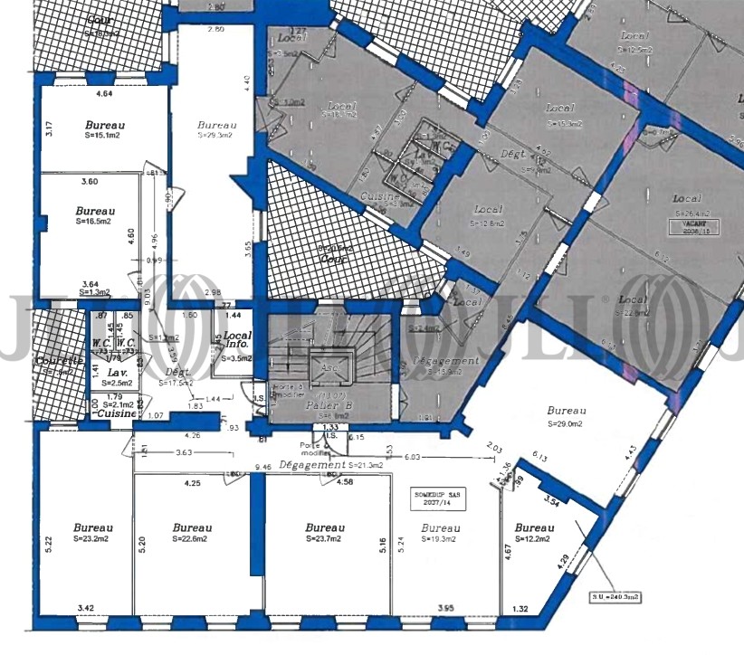
- Plan
- Brochure
- Consultant
- Nous contacter
Description
JLL vous propose des bureaux à la location dans un immeuble haussmannien de standing et de caractère, en plein cœur du centre-ville de Marseille. L’immeuble se situe sur la rue de la République entre le Vieux-Port et la Place Sadi Carnot, à proximité immédiate du quartier d’affaires d’EUROMED. Il bénéficie d’une belle visibilité et d’une excellente desserte en transport en commun (métro M1 & M2, tramway T2 & T3). Les bureaux d’une superficie de 240 m² au 1er étage et de 123 m² au 2e étage sont à louer aménagés (câblés et cloisonnés) et rénovés. L’environnement immédiat est dynamique et proche de toutes les commodités (parkings publics, restaurants, commerces…).
Les informations sur les risques auxquels ce bien est exposé sont disponibles sur le site Géorisques : www.georisques.gouv.fr
Surface disponible
DPE
Diagnostic en cours de réalisation
Localisation et Transports
• Métro M2 " Jules Guesde " à 550 m (Directions Bougainville ou Ste Marguerite Dromel)
• Tramway T2 & T3 "Sadi Carnot" à 170 m (Directions Arenc Le Silo, La Blancarde ou Castellane)
• Gare TGV Saint Charles à 1 arrêt de métro
• Nombreuses lignes de bus à proximité : 31, 32, 55, 70, 89, 97, 526…
• Station vélos à proximité immédiate
• Parking public à proximité immédiate
• Accès tunnel Prado-Carénage
• A 150m du Vieux-Port
Consultant

Alison Kammer
Détails de l'agent