Bureaux
Réf. 9083857-59 RUE NATIONALE
LILLE, 59800
300 € / m²
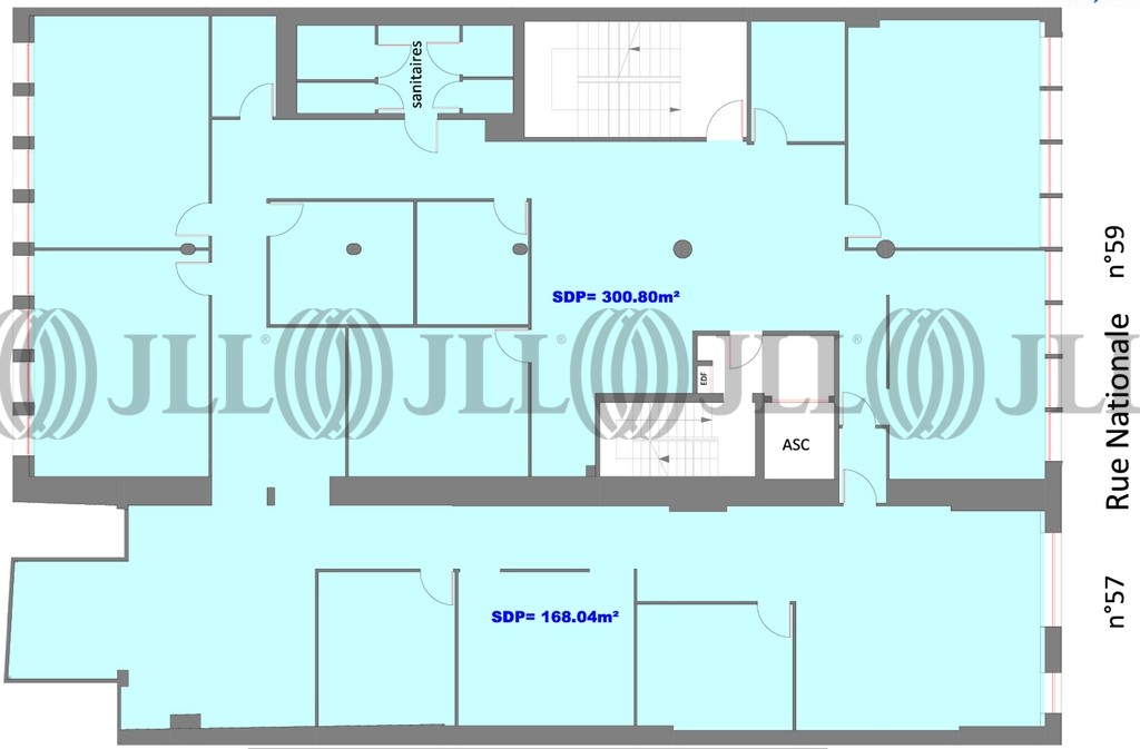
- Surface460 m² divisibles dès 160 m² (env. 46 postes)
- DisponibilitéImmédiate
- Description
- Prestations & Services
- DPE
- Localisation et Transports
- Plan
- Brochure
- Consultant
- Nous contacter
Description
BUREAUX - A LOUER - LILLE CENTRE
Idéalement situé en plein coeur de Lille, surfaces de bureaux de style industriel offrant une ambiance contemporaine et tendance.
Environnement dynamique et connecté. Nombreux commerces et services à proximité immédiate.
Les informations sur les risques auxquels ce bien est exposé sont disponibles sur le site Géorisques : www.georisques.gouv.fr
Surface disponible
DPE
Diagnostic en cours de réalisation
Localisation et Transports
Métro ligne 1 station "Rihour" à 280m
Bus lignes L1 et L5 - Arrêt "Nationale" à 300m
Gare TGV Lille Flandres à 10 min et Lille Europe à 14 min
Parking public au pied de l'immeuble
Bus lignes L1 et L5 - Arrêt "Nationale" à 300m
Gare TGV Lille Flandres à 10 min et Lille Europe à 14 min
Parking public au pied de l'immeuble
Consultant

Quentin Masse
Détails de l'agent







