Bureaux
Réf. 88734NOVALILLE
149 RUE DE DOUAI
LILLE, 59000
150 € / m²
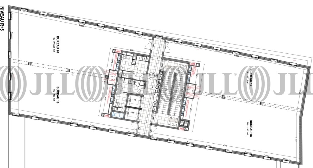
- Surface515 m² divisibles dès 252 m² (env. 51 postes)
- DisponibilitéImmédiate
- Description
- Prestations & Services
- DPE
- Localisation et Transports
- Plan
- Brochure
- Consultant
- Nous contacter
Description
BUREAUX - A LOUER - LILLE
Dans un immeuble au coeur de Lille, surface de bureaux disponible à la location. Novalille est situé dans un secteur lillois qui connait une mutation urbaine importante autour du quartier du Belvédère et d’Euralille 3.
Ces changements se matérialisent par l’arrivée du siège social de Partenor sur 10 000 m², la création du futur quartier Saint Sauveur et la livraison actuelle de nombreux immeubles résidentiels, tertiaires et de services.
Les informations sur les risques auxquels ce bien est exposé sont disponibles sur le site Géorisques : www.georisques.gouv.fr
Surface disponible
DPE
Diagnostic en cours de réalisation
Localisation et Transports
Métro ligne 2 station 'Porte de Douai' à 160m
Bus ligne L1 arrêt 'Porte de Douai' devant l'immeuble
Gares TGV Lille Flandres et Lille Europe en moins de 7 min (métro direct)
Accès rapide aux grands axes routiers et autoroutiers
Aéroport Lille Lesquin en 12 min en voiture
Bus ligne L1 arrêt 'Porte de Douai' devant l'immeuble
Gares TGV Lille Flandres et Lille Europe en moins de 7 min (métro direct)
Accès rapide aux grands axes routiers et autoroutiers
Aéroport Lille Lesquin en 12 min en voiture
Consultant

Quentin Masse
Détails de l'agent



