Bureaux
Réf. 86899LILLE DYNAMIC
289-293 RUE DU FAUBOURG DES POSTES
LILLE, 59000
135,49 € / m²
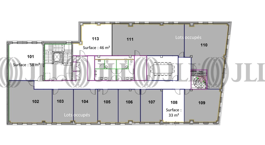
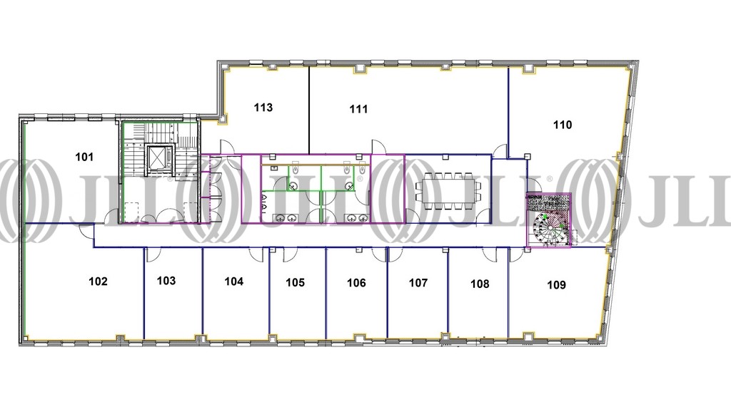
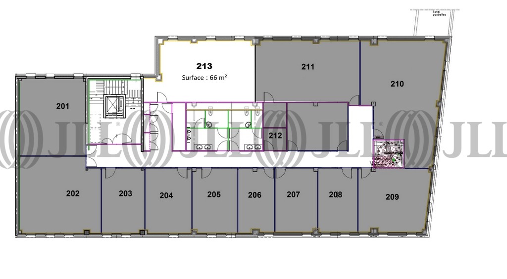
- Surface432 m² divisibles dès 31 m² (env. 43 postes)
- DisponibilitéImmédiate
- Description
- Prestations & Services
- DPE
- Localisation et Transports
- Plans
- Brochure
- Consultant
- Nous contacter
Description
BUREAUX - A LOUER - LILLE SUD
Situé en Zone Franche, découvrez Lille Dynamic, un espace de bureaux moderne et polyvalent proposant plusieurs surfaces de bureaux à la location.
Très bonne accessibilité routière et à proximité du métro.
Les informations sur les risques auxquels ce bien est exposé sont disponibles sur le site Géorisques : www.georisques.gouv.fr
Surface disponible
DPE
Diagnostic en cours de réalisation
Localisation et Transports
Métro ligne 1 station "CHU Eurasanté" à 350m Gares TGV Lille Flandres en 15 min et Lille Europe en 19 min Accès rapide autoroutes A25 et A1
Consultant

Quentin Masse
Détails de l'agent




