Bureaux
Réf. 86252RED STONE
71 QUAI DE L OUEST
LILLE, 59000
Loyer annuel: 155 € / m²
Prix à la vente: 2 600 € / m²
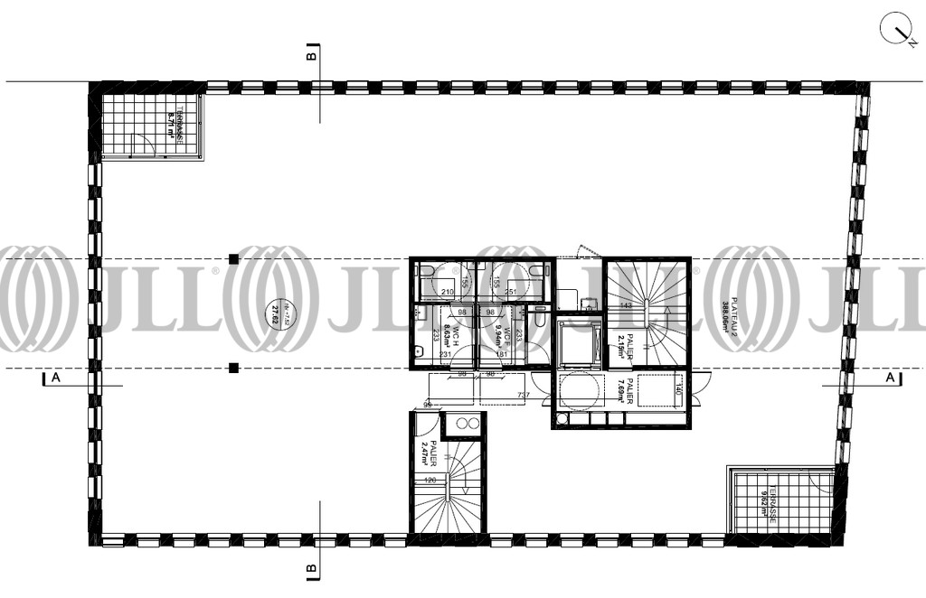
- Surface200 m² (env. 20 postes)
- DisponibilitéImmédiate
- Description
- Prestations & Services
- DPE
- Localisation et Transports
- Plan
- Brochure
- Consultant
- Nous contacter
Description
BUREAUX - A LOUER / A VENDRE - LILLE EURATECHNOLOGIES
L’immeuble se situe au sein d’Euratech, site d’excellence et d’innovation de la métropole lilloise qui réunit une communauté de 300 entreprises tech, 200 startups, fablabs,…
Le plateau se situe dans un immeuble neuf respectant le cachet du secteur d’Euratech et bénéficie d’une belle luminosité naturelle.
Les informations sur les risques auxquels ce bien est exposé sont disponibles sur le site Géorisques : www.georisques.gouv.fr
Surface disponible
DPE
Diagnostic en cours de réalisation
Localisation et Transports
Métro M2 arrêt 'Canteleu' à 900m
et arrêt 'Bois Blanc' à 850m
Gare TGV Lille Flandres en 13 min
Gare TGV Lille Europe en 15 min
Accès rapide aux grands axes routiers et autoroutiers
et arrêt 'Bois Blanc' à 850m
Gare TGV Lille Flandres en 13 min
Gare TGV Lille Europe en 15 min
Accès rapide aux grands axes routiers et autoroutiers
Consultant

Quentin Masse
Détails de l'agent





