BATIMENT A
2 RUE DE L'ESPOIR
LEZENNES, 59260
150 € / m²
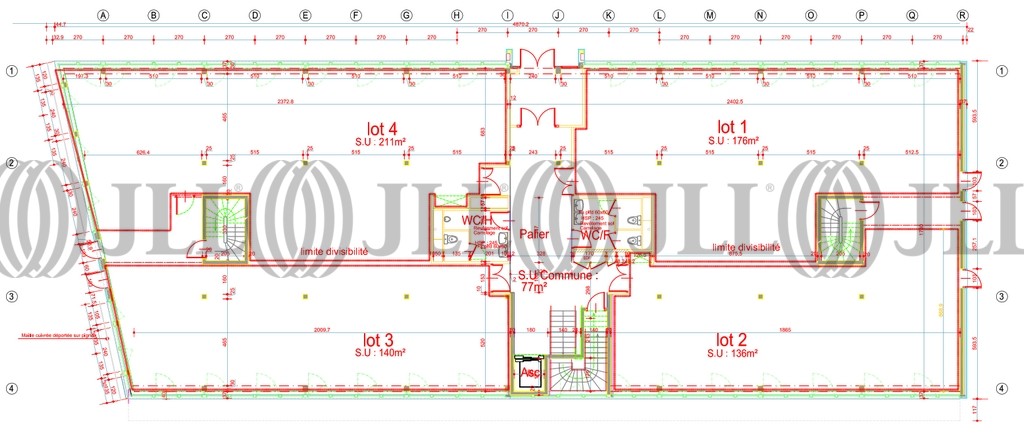
- Surface2 206 m² divisibles dès 400 m² (env. 220 postes)
- DisponibilitéImmédiate
- Description
- Prestations & Services
- DPE
- Localisation et Transports
- Plans
- Brochure
- Consultant
- Nous contacter
Description
BATIMENT DE BUREAUX - A LOUER / VENTE POSSIBLE - LEZENNES
Découvrez des bureaux à louer à Lezennes, au cœur de la métropole lilloise. Cet immeuble indépendant propose une surface de 2 206 m², divisible à partir de 400 m² pour s'adapter aux besoins de votre entreprise.
Les plateaux sont équipés de faux-plafonds, de luminaires LED et d'un câblage RJ45. Le bâtiment est doté d'un ascenseur et de nombreuses places de stationnement intérieures et extérieures.
Situé stratégiquement, il bénéficie d'un accès rapide aux autoroutes et à l'aéroport de Lille-Lesquin, tout en étant desservi par les transports en commun.
Les informations sur les risques auxquels ce bien est exposé sont disponibles sur le site Géorisques : www.georisques.gouv.fr
Surface disponible
DPE
Diagnostic en cours de réalisation
Localisation et Transports
Aéroport Lille Lesquin à 12 min en voiture
Consultant

François nicolas Claudot
Détails de l'agent







