Bureaux
Réf. 97491PARC VENDOME II
RUE DU PIC AU VENT
LESQUIN, 59810
139,22 € / m²
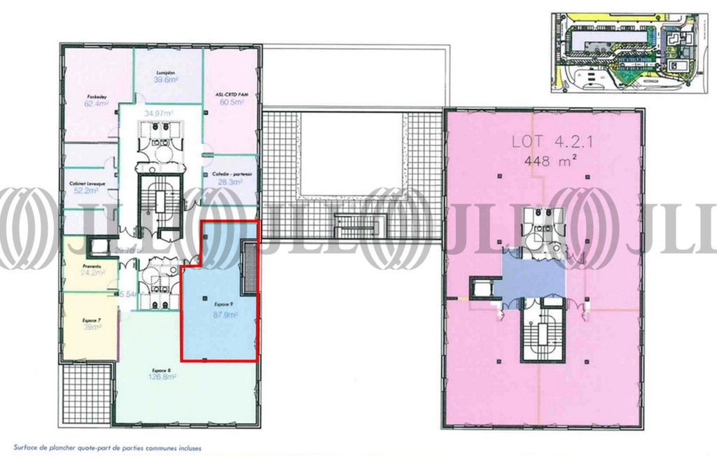
- Surface599 m² divisibles dès 88 m² (env. 59 postes)
- DisponibilitéImmédiate
- Description
- Prestations & Services
- DPE
- Localisation et Transports
- Plans
- Brochure
- Consultant
- Nous contacter
Description
BUREAUX - A LOUER - CRT LESQUIN
Plusieurs surfaces de bureaux disponibles à la location dès 88 m².
Bon rapport qualité / prix. Nombreux emplacements de parkings.
Les informations sur les risques auxquels ce bien est exposé sont disponibles sur le site Géorisques : www.georisques.gouv.fr
Surface disponible
DPE
Diagnostic en cours de réalisation
Localisation et Transports
A proximité immédiate des autoroutes A1 (Lille/Paris) et A23 (Lille/Valenciennes) et de l'échangeur de Lesquin
Aéroport de Lille à 1,5 km
Aéroport de Lille à 1,5 km
Consultant

Charlotte Ghesquiere
Détails de l'agent







