Bureaux
Réf. 96588270 AVENUE DE LA REPUBLIQUE
LA MADELEINE, 59110
175 € / m²
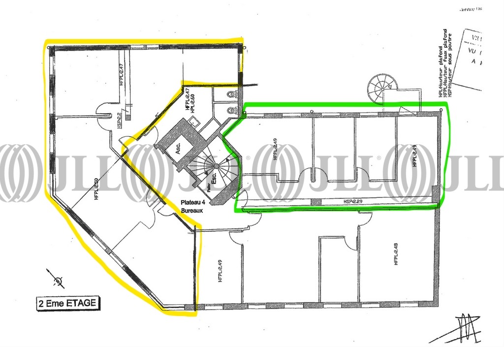
- Surface546 m² divisibles dès 273 m² (env. 54 postes)
- DisponibilitéImmédiate
- Description
- Prestations & Services
- DPE
- Localisation et Transports
- Plan
- Brochure
- Consultant
- Nous contacter
Description
BUREAUX - A LOUER - LA MADELEINE
Vous souhaitez des bureaux sur les Grands Boulevards, à proximité de Lille, venez visiter ces bureaux.
JLL vous propose deux plateaux de bureaux d’environ 273 m².
Extrêmement bien situés sur les grands boulevards, tramway au pied de l’immeuble et de nombreux services à proximité immédiate.
Les informations sur les risques auxquels ce bien est exposé sont disponibles sur le site Géorisques : www.georisques.gouv.fr
Surface disponible
DPE
Diagnostic en cours de réalisation
Localisation et Transports
Tramway arrêt 'St Maur'
Consultant

Quentin Masse
Détails de l'agent







