LE VAL D'ECULLY
4 CHEMIN DU RUISSEAU
ECULLY, 69130
130 € / m²
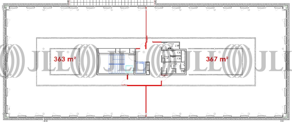
- Surface772 m² divisibles dès 177 m² (env. 77 postes)
- DisponibilitéImmédiate
- Description
- Prestations & Services
- DPE
- Localisation et Transports
- Plans
- Brochure
- Consultant
- Nous contacter
Description
Bureaux à louer à LE VAL D'ECULLY, 4 CHEMIN DU RUISSEAU, ECULLY
Découvrez l'opportunité professionnelle que propose l'immeuble LE VAL D'ECULLY. Lot d'une surface de 772 m², divisible à partir de 177 m². Vous pouvez emménager immédiatement dans ces espaces rénovés, climatisés et équipés de faux plafonds acoustiques.
Les bureaux arborent une façade lumineuse munie de stores intérieurs, ainsi qu'un câblage RJ45 et un câblage courant fort/faible, distribué en plinthes périphériques. L'immeuble vous offre des prestations de qualité telles qu'un hall d'entrée, un accueil, des ascenseurs indépendants desservant tous les niveaux et une terrasse commune aménagée.
Les salariés peuvent profiter d'un FOOD TRUCK tous les jours sur le parc, et plusieurs points de restauration sont disponibles à seulement 15mn à pied.
Un stationnement 2 roues est également à disposition. Les transports tels que les bus des lignes 5 et 55, le métro ligne D station Valmy à 10 min ou le TER de Tassin la Demi-Lune à 12 min, permettent un accès facile au site. De plus, l'autoroute A6 est facilement accessible et vous êtes à seulement 800 m de la Place de l’Horloge et de ses commerces.
Les informations sur les risques auxquels ce bien est exposé sont disponibles sur le site Géorisques : www.georisques.gouv.fr
Frais de gérance en sus: 5% du loyer annuel HT
Assurance bailleur : 0.32 € HT/m²/an
Surface disponible
DPE
Diagnostic en cours de réalisation
Localisation et Transports
Gare TER Tassin la Demi-Lune à 12 min environ en bus
Métro ligne D station Valmy à 10 min environ en bus
Accès routier autoroute A6
A 800 m de la Place de l’Horloge et de ses commerces
Consultant

Nicolas Mainguy
Détails de l'agent







