@WORK
16-18 CHEMIN DU TRONCHON
DARDILLY, 69570
160 € / m²
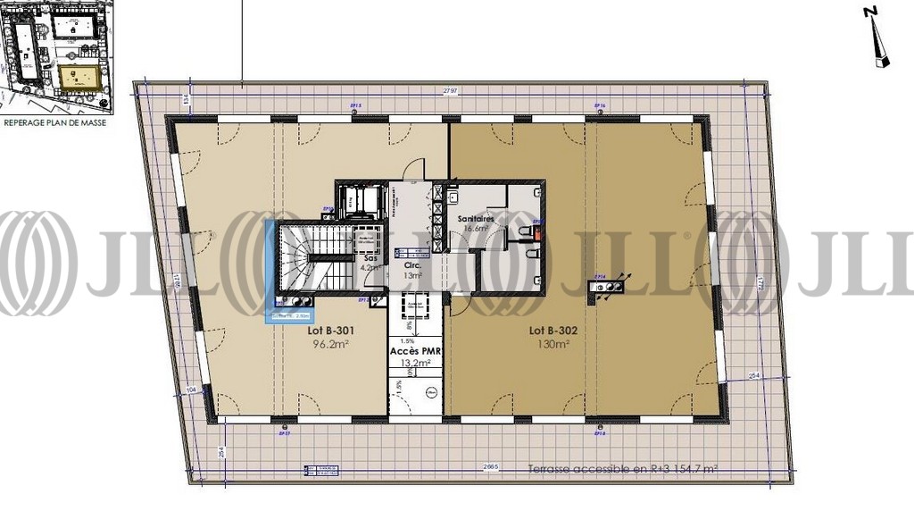
- Surface752 m² divisibles dès 111 m² (env. 75 postes)
- DisponibilitéImmédiate
- Description
- Prestations & Services
- DPE
- Localisation et Transports
- Plans
- Brochure
- Consultant
- Nous contacter
Description
Bureaux à louer à @WORK
Découvrez @WORK, un immeuble situé au 16-18 chemin du Tronchon à Dardilly (69570), offrant des bureaux modernes et fonctionnels disponibles immédiatement. D’une surface totale de 752 m², cet espace est divisible à partir de 111 m² pour s’adapter à vos besoins.
Cet actif immobilier de qualité propose de nombreuses prestations : accessibilité PMR, certification environnementale BREEAM Very Good, ERP 5, ascenseur, grande terrasse sur le bâtiment B, locaux neufs avec faux plafond, hauteur sous plafond de 2,6 m, stores extérieurs motorisés, sanitaires communs, climatisation double flux, fibre optique et plinthes techniques en périphérie.
Idéalement situé, @WORK est facilement accessible : à 16 minutes en voiture de Lyon Perrache, 30 minutes de la Gare TGV Part-Dieu, 35 minutes de l’aéroport Saint-Exupéry. De plus, les lignes de bus (6, 89 et Ge4) et les axes autoroutiers (A7) assurent une excellente connexion aux infrastructures clés.
Ne manquez pas cette opportunité d’installer vos bureaux dans un environnement alliant praticité et confort
Les informations sur les risques auxquels ce bien est exposé sont disponibles sur le site Géorisques : www.georisques.gouv.fr
Assurance bailleur : 0.75 € HT/m²
Surface disponible
DPE
Diagnostic en cours de réalisation
Localisation et Transports
. Gare TGV Part-Dieu à 30 mn voiture . Bus : Lignes 6 - 89 - Ge 4 . Accès routiers : Autoroute A7
. Aéroport St Exupéry à 35 mn
Consultant

Nicolas Mainguy
Détails de l'agent


