Bureaux
Réf. CO20014ARAVIS
53 RUE LOUIS NéEL
BEZANNES, 51430
135 € / m²
- Surface350 m² divisibles dès 100 m² (env. 35 postes)
- DisponibilitéNous consulter
- Description
- Prestations & Services
- DPE
- Localisation et Transports
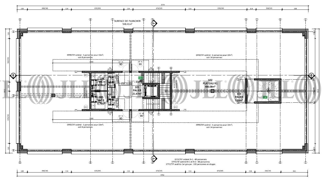
- Plan
- Brochure
- Consultant
- Nous contacter
Description
Plateau aménagé par le Bailleur, disponible immédiatement. Restautation, crèche, hotels à proximité immédiate. Cette offre vous est proposée par notre partenaire Cotrim
DPE
Diagnostic en cours de réalisation
Localisation et Transports
Gare TGV, Bus, Tramway, Autoroute
Consultant

Cotrim
Détails de l'agent



