Bureaux
Réf. 95793Mise à jour
PARC DE LA CIMAISE
6 RUE DU CARROUSEL
VILLENEUVE D ASCQ, 59650
Loyer annuel: 135 € / m²
Prix à la vente: 1 818,18 € / m²
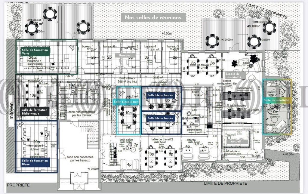
- Surface550 m² divisibles dès 250 m² (env. 55 postes)
- DisponibilitéImmédiate
- Description
- Prestations & Services
- DPE
- Localisation et Transports
- Plan
- Brochure
- Consultant
- Nous contacter
Description
BUREAUX - A LOUER / A VENDRE - VILLENEUVE D'ASCQ CIMAISE
A Villeneuve d’Ascq, près de Decathlon Campus, nous vous proposons un plateau de bureau indépendant en RDC à la location ou à l’achat.
Rénové qualitativement en 2019, les locaux sont lumineux et fonctionnels grâce à de nombreux aménagements bien pensés. Possibilité de scinder la surface grâce à deux entrées et de récupérer le mobilier en place. A visiter !
Les informations sur les risques auxquels ce bien est exposé sont disponibles sur le site Géorisques : www.georisques.gouv.fr
Surface disponible
DPE
Diagnostic en cours de réalisation
Localisation et Transports
Bus ligne 32 station 'Cimaise' à 300 m
Métro M1 station 'Pont de Bois' à 10 min (bus direct)
Gares TGV Lille Flandres et Lille Europe à 25 min (bus + métro)
Accès rapide aux grands axes routiers et autoroutiers
Aéroport Lille Lesquin à 15 min en voiture
Métro M1 station 'Pont de Bois' à 10 min (bus direct)
Gares TGV Lille Flandres et Lille Europe à 25 min (bus + métro)
Accès rapide aux grands axes routiers et autoroutiers
Aéroport Lille Lesquin à 15 min en voiture
Consultant

François nicolas Claudot
Détails de l'agent







