Bureaux
Réf. 90489LA MAILLERIE - LE DAMIER
AVENUE LE NOTRE
VILLENEUVE D ASCQ, 59650
Loyer annuel: 150 € / m²
Prix à la vente: 2 500 € / m²
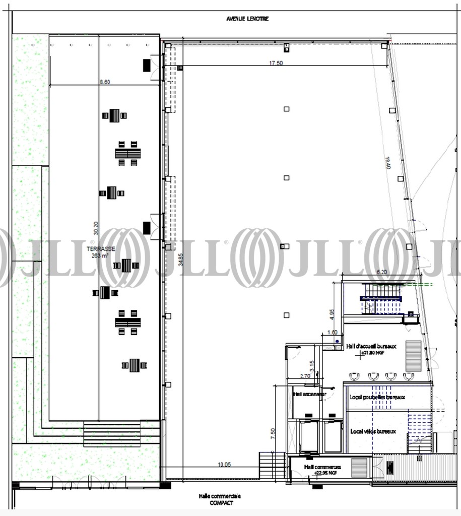
- Surface516 m² (env. 51 postes)
- DisponibilitéImmédiate
- Description
- Prestations & Services
- DPE
- Localisation et Transports
- Plans
- Brochure
- Consultant
Description
LOCAL NEUF - A LOUER / A VENDRE - VILLENEUVE D'ASCQ LA MAILLERIE
Entre Villeneuve d’Ascq et Croix, nous vous proposons un rez-de-chaussée commercial au sein d’immeuble de bureaux neuf au cœur de La Maillerie, nouveau quartier mêlant : services, restauration, verdure et une très bonne desserte. Toutes les réussites du bien-être au travail.
Local coque brute + espace extérieur.
Les informations sur les risques auxquels ce bien est exposé sont disponibles sur le site Géorisques : www.georisques.gouv.fr
- Zone AFR
Surface disponible
DPE
Diagnostic en cours de réalisation
Localisation et Transports
Métro M2 station « Croix Centre » à 550 m
Gares TGV Lille Europe et Lille Flandres en 20 min environ
Bus ligne 32 arrêt « Pont de Croix » à 210 m
Tramway station « Villa Cavrois » à 650 m
Accès rapide autoroute A22 et grands axes routiers
Gares TGV Lille Europe et Lille Flandres en 20 min environ
Bus ligne 32 arrêt « Pont de Croix » à 210 m
Tramway station « Villa Cavrois » à 650 m
Accès rapide autoroute A22 et grands axes routiers
Consultant

François nicolas Claudot
Détails de l'agent