Bureaux
Réf. 98506Mise à jour
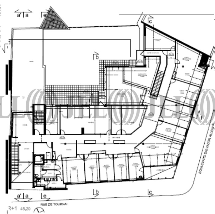
75 RUE DE TOURNAI
TOURCOING, 59200
Loyer annuel: 120 € / m²
Prix à la vente: 1 400 € / m²
- Surface1 756 m² (env. 175 postes)
- Disponibilité1e trim. 2027
- Description
- Prestations & Services
- DPE
- Localisation et Transports
- Plans
- Brochure
- Consultant
- Nous contacter
Description
BUREAUX - A LOUER / A VENDRE - TOURCOING CENTRE
Au coeur de Tourcoing, à proximité immédiate du métro, du tramway et du centre commercial Espace Saint-Christophe, 1 756 m² de bureaux non divisibles disponible à l'achat ou à la location.
Les informations sur les risques auxquels ce bien est exposé sont disponibles sur le site Géorisques : www.georisques.gouv.fr
Surface disponible
DPE
Localisation et Transports
Métro ligne 2 station 'Tourcoing centre' à 300m Gare de Tourcoing à 10 min à pied Bus lignes L4, L8, 17, 35, Z1 et Z4 arrêt 'Les Arcades' à 200m Tramway
Consultant

Quentin Masse
Détails de l'agent







