Bureaux
Réf. 90360PROJET ECOPARC DU PUY - BAT D
LA CONFRERIE - D15
LE PUY STE REPARADE, 13610
Loyer annuel: 168 € / m²
Prix à la vente: 2 500 € / m²
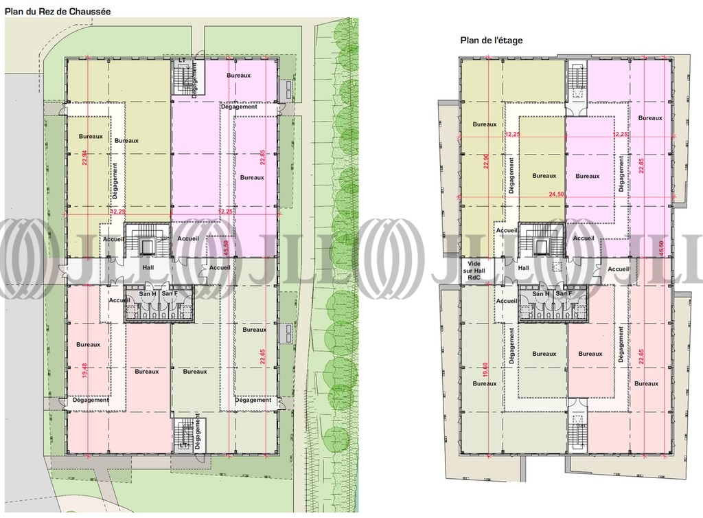
- Surface2 076 m² divisibles dès 207 m² (env. 207 postes)
- Disponibilité2e trim. 2029
- Description
- Prestations & Services
- DPE
- Localisation et Transports
- Plans
- Brochure
- Consultant
- Nous contacter
Description
Nous vous présentons un ensemble immobilier neuf de bureaux, activité laboratoire dans un espace paysagé de 3.7 hectares.
Label Environnemental Breeam Very Good.
Les informations sur les risques auxquels ce bien est exposé sont disponibles sur le site Géorisques : www.georisques.gouv.fr
Loyer bureaux : 168 € HT.HC/m²/an
Loyer activités - laboratoires : 135€ HT.HC/m²/an
Surface disponible
DPE
Diagnostic en cours de réalisation
Localisation et Transports
. SNCF : Gare TGV en 30 min . Aéroport Marseille Provence en 50 min
. Accès routiers : A51 - D15
. Accès routiers : A51 - D15
Consultant

Valérie Manin
Détails de l'agent






