Bureaux
Réf. 86823PARC CONNECT
110 RUE DES BOURRELIERS
HALLENNES LEZ HAUBOURDIN, 59320
160 € / m²
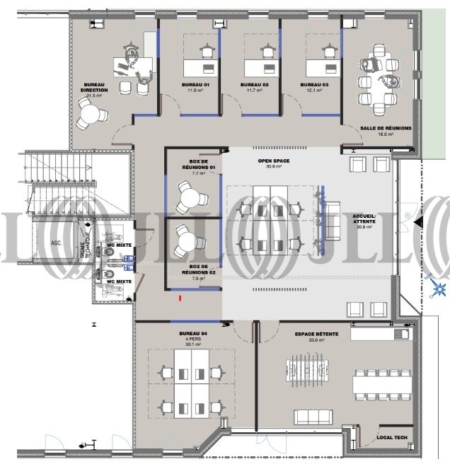
- Surface272 m² (env. 27 postes)
- DisponibilitéImmédiate
- Description
- Prestations & Services
- DPE
- Localisation et Transports
- Plans
- Brochure
- Consultant
- Nous contacter
Description
BUREAUX NEUFS - A LOUER - HALLENNES LEZ HAUBOURDIN
Située aux portes des Weppes, dans la Métropole européenne de Lille. Le parc d’activité d’hallennes dispose d’un emplacement privilégié en termes d’accessibilités.
Connect, parc d’hallennes est conçu pour de multiples activités : commerce de gros, atelier, stockage, showroom, bureaux…
Les informations sur les risques auxquels ce bien est exposé sont disponibles sur le site Géorisques : www.georisques.gouv.fr
- Zone AFR
Surface disponible
DPE
Diagnostic en cours de réalisation
Localisation et Transports
Bus lignes 61 et 61R - Arrêt "Moulin Lamblin" devant le parc
Bus ligne 58 - Arrêt "La Colle" à 650m
Gares TGV Lille Europe et Lille Flandres à 21 minutes en voiture
Aéroport Lille Lesquin à 18 min en voiture
Bus ligne 58 - Arrêt "La Colle" à 650m
Gares TGV Lille Europe et Lille Flandres à 21 minutes en voiture
Aéroport Lille Lesquin à 18 min en voiture
Consultant

Quentin Masse
Détails de l'agent






