Bureaux
Réf. 97682Mise à jour
EDGAR - BATIMENT C
78 RUE DE LA GARE
CROIX, 59170
165 € / m²
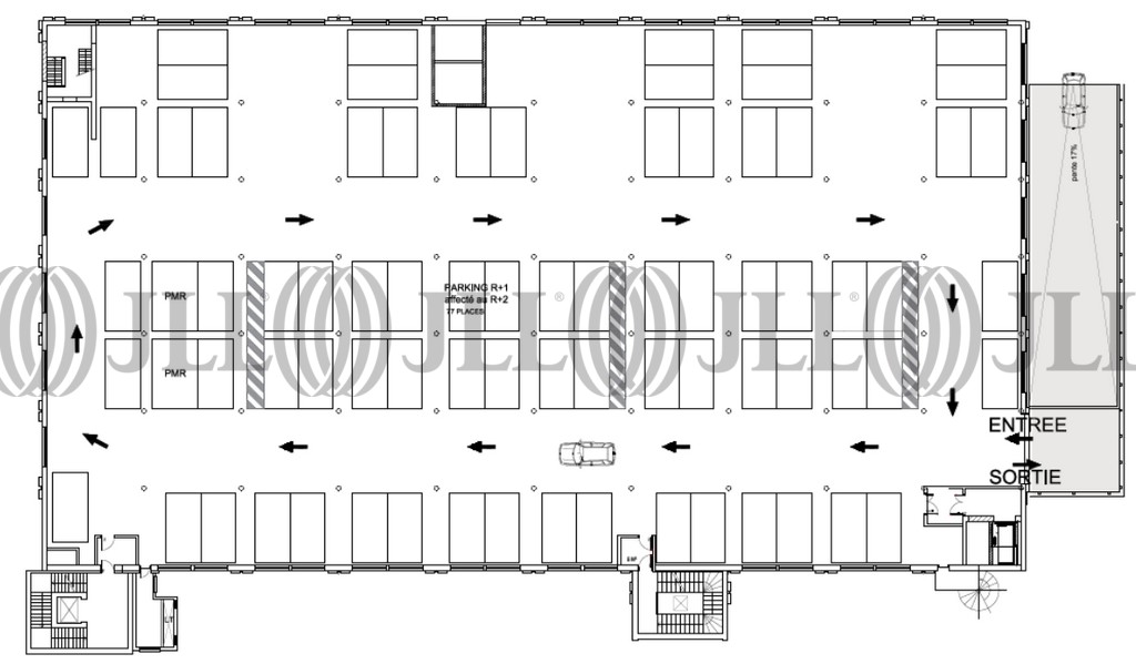
- Surface2 654 m² (env. 265 postes)
- Disponibilité3e trim. 2026
- Description
- Prestations & Services
- DPE
- Localisation et Transports
- Plans
- Brochure
- Consultant
- Nous contacter
Description
BUREAUX - A LOUER - CROIX Centre
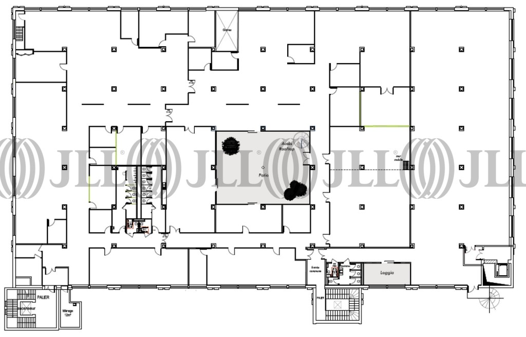
En plein coeur de ville de Croix, à proximité des nombreux commerces et services, nous vous proposons à la location un immeuble de bureaux de 2 640m² sur un seul niveau ainsi que 77 places de parkings.
Les locaux sont aménagés, lumineux et très facilement accessible (gare TGC Croix Wasquehal, Métro "Mairie de Croix", piste cyclable, noeud autoroutier...).
Vente possible, nous consulter.
Les informations sur les risques auxquels ce bien est exposé sont disponibles sur le site Géorisques : www.georisques.gouv.fr
Vente possible : nous consulter
Surface disponible
DPE
Diagnostic en cours de réalisation
Localisation et Transports
Bus lignes C11 et 32 - Arrêt 'Palais des Métiers' à 250m
Gare TER de Croix Wasquehal à 300m
Métro M2 station "Croix Centre" à 600m environ
Gares TGV Lille Europe et Lille Flandres en 14 min
Accès direct aux autoroutes A1, A22, à la rocade Nord-Ouest et la VRU
Gare TER de Croix Wasquehal à 300m
Métro M2 station "Croix Centre" à 600m environ
Gares TGV Lille Europe et Lille Flandres en 14 min
Accès direct aux autoroutes A1, A22, à la rocade Nord-Ouest et la VRU
Consultant

François nicolas Claudot
Détails de l'agent







