Bureaux
Réf. 86885PROTOCOL
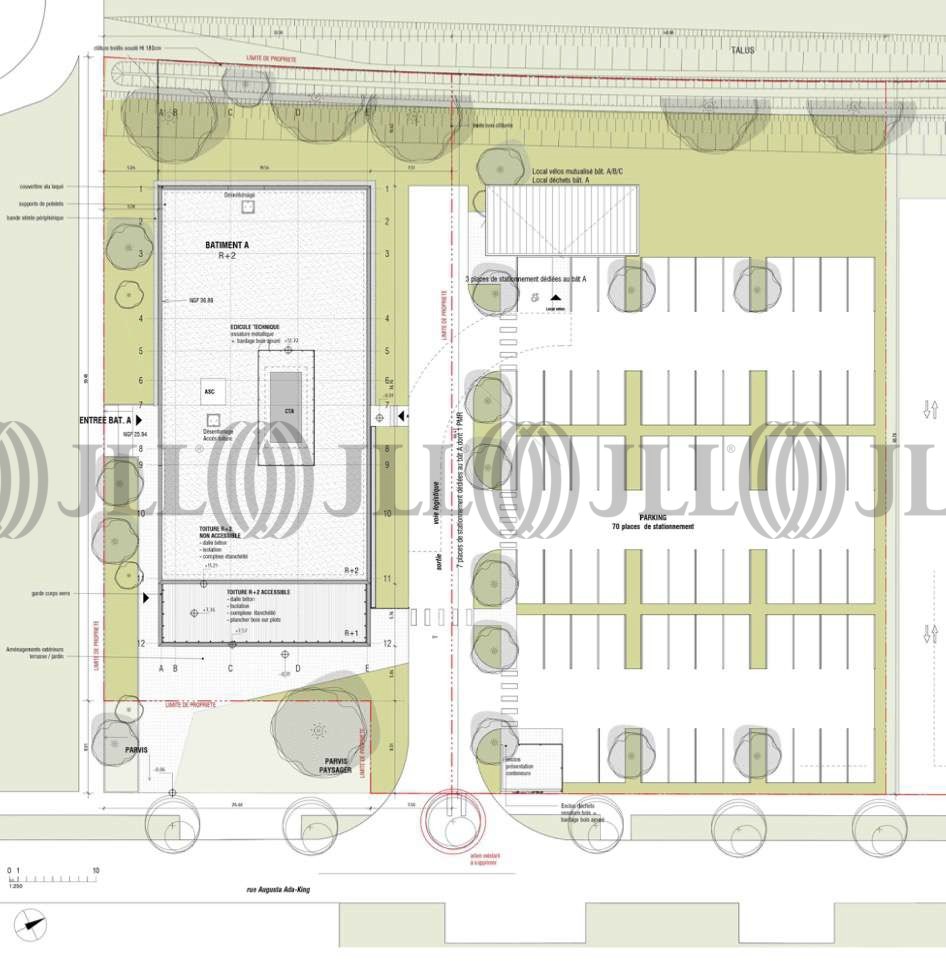
AVENUE AUGUSTA ADA-KING
ANZIN, 59410
Loyer annuel: 165 € / m²
Prix à la vente: 2 400 € / m²
- Surface1 680 m² divisibles dès 300 m² (env. 168 postes)
- DisponibilitéImmédiate
- Description
- Prestations & Services
- DPE
- Localisation et Transports
- Plans
- Brochure
- Consultant
- Nous contacter
Description
BUREAUX NEUFS - A LOUER / A VENDRE - ANZIN
Au sein du parc des Rives Créatives, un pôle d'excellence numérique et technologique, le programme PROTOCOL propose près de 1 700 m² de bureaux à louer ou à vendre.
Nombreux parkings disponibles.
Les informations sur les risques auxquels ce bien est exposé sont disponibles sur le site Géorisques : www.georisques.gouv.fr
- Zone AFR
Surface disponible
DPE
Diagnostic en cours de réalisation
Localisation et Transports
Tramway station Centre des Congrès à 350m
Gare de Valenciennes à 5 min
Accès rapide autoroutes A2 et A12
Gare de Valenciennes à 5 min
Accès rapide autoroutes A2 et A12
Consultant

Quentin Masse
Détails de l'agent


